
Vị trí thuận tiện – Pháp lý rõ ràng – Hạ tầng hoàn chỉnh
📍 Vị trí: kết nối nhanh với các tuyến đường trọng điểm, thuận tiện logistics và vận chuyển hàng hóa.
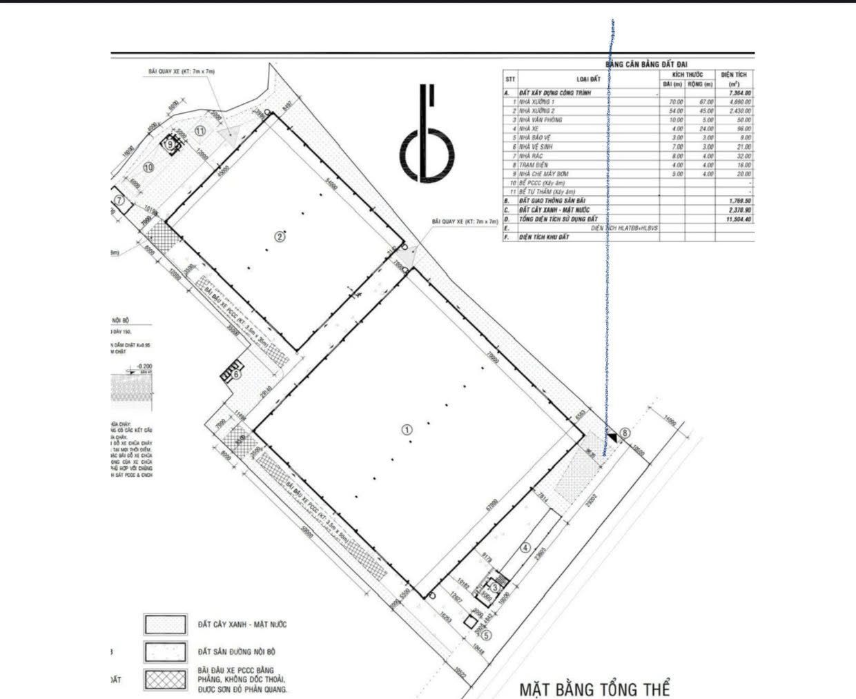
🔹 Tổng diện tích khuôn viên: 12.500 m²
🔹 Tổng diện tích xây dựng: 7.300 m², bao gồm:
• Xưởng 1: 4.690 m² (70m x 67m)
• Xưởng 2: 2.430 m² (54m x 45m)
• Văn phòng điều hành: 50 m²
• Nhà xe: 96 m²
• Nhà bảo vệ: 9 m²
• Nhà vệ sinh: 21 m²
• Nhà chứa rác: 32 m²
⚙️ Trang bị kỹ thuật:
• Hệ thống PCCC tự động, nghiệm thu
• Trạm điện 560 KVA, đáp ứng sản xuất đa ngành
• Đường nội bộ, hệ thống thoát nước, chiếu sáng đầy đủ
📄 Pháp lý hoàn chỉnh: Giấy tờ, hồ sơ hoàn công đầy đủ – hỗ trợ thủ tục nhanh chóng cho doanh nghiệp
💵 Giá thuê: 3usd/m2/tháng
📌 Đặt cọc: 6 tháng
📆 Thời hạn hợp đồng: Tối thiểu 5 năm – Ưu tiên hợp đồng dài hạn đến 10 năm+
✅ Phù hợp nhiều ngành nghề sản xuất: cơ khí, bao bì, nội thất, thực phẩm, dệt may…
📞 Liên hệ ngay để nhận layout và hỗ trợ khảo sát thực tế
🌐 Website: khoxuongdep.net
🏢 Đơn vị phân phối: Phúc Hưng Real – Chuyên bất động sản công nghiệp.
0 đánh giá của khách hàng
-
1
0%0 đánh giá
-
2
0%0 đánh giá
-
3
0%0 đánh giá
-
4
0%0 đánh giá
-
5
0%0 đánh giá
Gửi đánh giá
Không có đánh giá